
图纸目录:
图纸目录1-2
		
图纸目录3-4
		
施工图说明:
施工图设计说明第一页
		
施工图设计说明第二页
		
施工图装饰材料图:
		
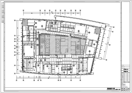
写字楼平面布置图:
平面布置图
		
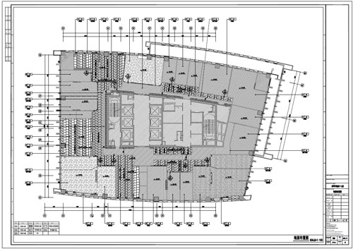
装饰完成面定位尺寸图
		
顶面布置图
		
顶面造型尺寸图
		
顶面灯具尺寸图
		
地面布置图
		
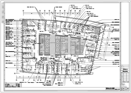
强弱电点位示意图
		
立面索引图
		
董事长室立面图:
董事长室立面图01-02
	
董事长室立面图03-04
	
总经理室立面图:
总经理室立面图05-06
	
总经理室立面图07-08
	
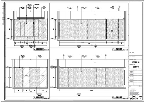
会议室1/2立面图:
会议室2立面图09-12
	
会议室1立面图13-16
	
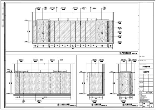
大会议室立面图:
大会议室立面图17-18
	
大会议室立面图19-22
	
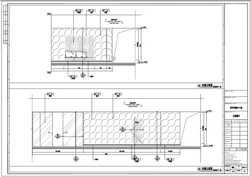
过道/走廊立面图:
过道立面图23
	
过道立面图24-25
	
过道立面图96-98
	
走廊立面图90(一)
	
走廊立面图90(二)
	
走廊立面图90(三)
	
走廊立面图91(一)
	
走廊立面图91(二)
	
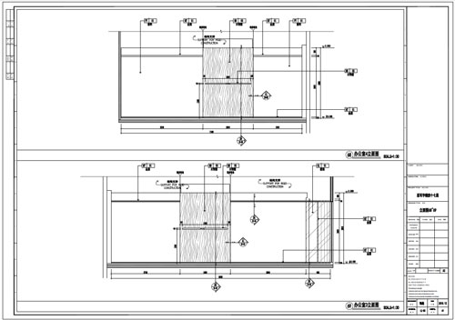
办公室1/2/3/4/5/6立面图:
办公室1立面图87-88
	
办公室1预经室立面图85-86
	
办公室1立面图83-84
	
办公室2立面图70-71
	
办公室2/3立面图72-73
	
办公室1/2/3立面图74-75
	
办公室3立面图68-69
	
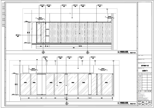
办公室4立面图65-67
	
办公室5立面图26-27
	
办公室5立面图28-29
	
办公室6立面图30-31
	
办公室6立面图32-33
	
财务、财经室立面图:
财务室立面图34-35
	
财务室立面图36-37
	
财经室立面图80-82
	
预算部、茶水间立面图:
预算部立面图38-39
	
预算部立面图40-41
	
茶水间立面图40-41
	
行政区、资料室立面图:
行政区立面图42-43
	
行政区立面图44-47
	
行政区立面图48-49
	
资料室1立面图78
	
>>>点击图片,在新窗口查看大图
资料室1/2/3立面图76-77
	
销售部、工程部、公共通道立面图:
销售部立面图50-51
	
销售部立面图52-54
	
销售部和工程部立面图55-56
	
公共通道和工程部立面图58-59
	
公共通道和工程部立面图60-62
	
公共通道立面图63
	
公共通道立面图64
	
节点大样全图:
节点大样图1-17
	
节点大样图18-26
	
节点图27-29 41-42
	
节点图30-33 39
	
节点图34-38 40
	
顶面节点图1
	
顶面节点图2
	
门表图:
门表图5
	
门表图(一)
	
门表图(二)
	
门表图(三)
	
门表图(四)
	