本次为厂房改造办公室装修设计效果图,厂房原本是一座纺织工厂,有着明显的后工业背景,本次改造就是将这座空置建筑,改造成办公室空间,对周边社区乃至城市的经济形态、和生活方式起到了积极的作用,大厅可用于展示商品、举办讲座和工作坊等,楼上的阳台则用作设计师的工作室和办公室。
▼庭院视角

▼旧电梯间被改造为酒吧

▼楼梯间

▼庭院天际线

▼首层平面图

▼二层和三层平面图

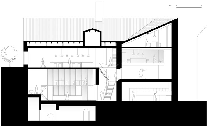
▼横剖面图

▼纵剖面图

▼通往主厅的走廊

▼通往主厅的走廊

▼主厅用作协作式办公空间

▼休息空间

▼休息空间

▼办公空间

▼办公空间

▼办公空间

▼会议室

▼工作室

▼建筑中还引入了一个双层的盒体结构

▼公共空间

▼木制框架外层包覆着聚碳酸酯板和波纹塑料板


▼私人办公室

本次厂房改造办公室装修设计效果图讲解到此结束,本次改造将这座旧厂区,改造成办公室空间,大厅可用于展示商品、举办讲座和工作坊等,楼上的阳台则用作设计师的工作室和办公室。